Работа по строительству началась в 2015 году.
В 2017 году этот проект "Karelian House" от архитектурного бюро "Drozdov&Partners" был номинирован на премию Building of the Year на самом влиятельном и посещаемом портале мира ArchDaily.
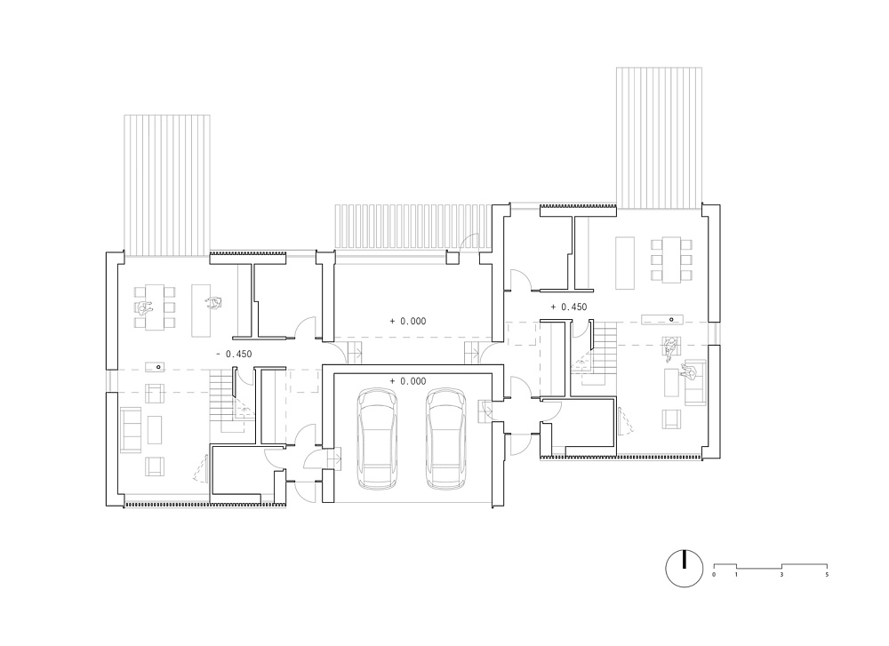
Заказчики — две сестры-близняшки и их семьи. В нем они намерены не только жить, но и работать. Проект представляет планировочную программу единого объема, разделенного на три пространства — два жилых дома и общая студия-мастерская с гаражом. С южной стороны участок ограничен дорогой, на востоке и западе он граничит с соседскими, а северная выходит на опушку. Каждый блок посажен на собственную отметку рельефа, но все они объединены плоскостью крыши.
Дом несет в себе функции дома-комплекса, который объединяет в себе не только жилые, но и хозяйственные помещения. Такое сочетание различных функциональных пространств под одной крышей является примером типичного архитектурного решения жилой архитектуры Карелии представителями северных карел-ливвиков.
Для этого объекта в Токсовском районе Ленинградской области (коттеджный поселок "Кавголовское озеро") на крыше и стенах применялась фальцевая кровля Ruukki Classic (тип C), покрытие GreenCoat Pural matt, цвет RR23 (темно-серый).
Нашими сотрудниками осуществлялся выезд, замер, расчет необходимого количества материала, раскладка картин на кровле и фасаде, шефмонтаж и отдельно прорабатывался конструктив всех узлов соединений и примыкания мансардных окон.
Максимальная длина фальцевых самозащелкивающихся листов достигала 12.5 метров. Можно обратить внимание на сопряжение фальца, и мансардных окон и как они показали себя в интерьере. Помимо этого использовалась водосточная система Ruukki (125/90мм), система вентиляции Vilpe и оригинальные финские элементы безопасности.
